Diagnostic archéologique au Collège Anatole Bailly

Diagnostic archéologique au Collège Anatole Bailly

Le collège Anatole Bailly sur lequel a été conduit un diagnostic en mai-juin 2015, se trouve en plein cœur du centre historique d’Orléans, au nord de rue Jeanne d’Arc percée au XIXe siècle.

Cette parcelle de 4000 m2, actuellement propriété de la ville d’Orléans, faisait l’objet d’un projet de cession. Le diagnostic anticipé visait ainsi à définir la nature, l’étendue et le degré de conservation des vestiges archéologiques afin de porter à la connaissance du futur acquéreur les éventuelles prescriptions patrimoniales à prendre en compte dans son projet d’aménagement du site.

Afin de limiter l’impact de l’intervention sur cette parcelle relativement étendue, nous avons procédé en premier lieu à une étude documentaire, couplée à une reconnaissance des lieux et au relevé des caves, carrières et autres parties enterrées.

En fonction de la restitution de cette topographie historique du site, des sondages manuels et mécaniques ciblés ont été positionnés. Soit depuis les caves pour renseigner la partie basse de la stratigraphie, soit depuis la cour concernant la partie supérieure de la stratigraphie. Ils ont été complétés par sept sondages géotechniques carottés qui ont permis d’approcher la séquence stratigraphique complète.

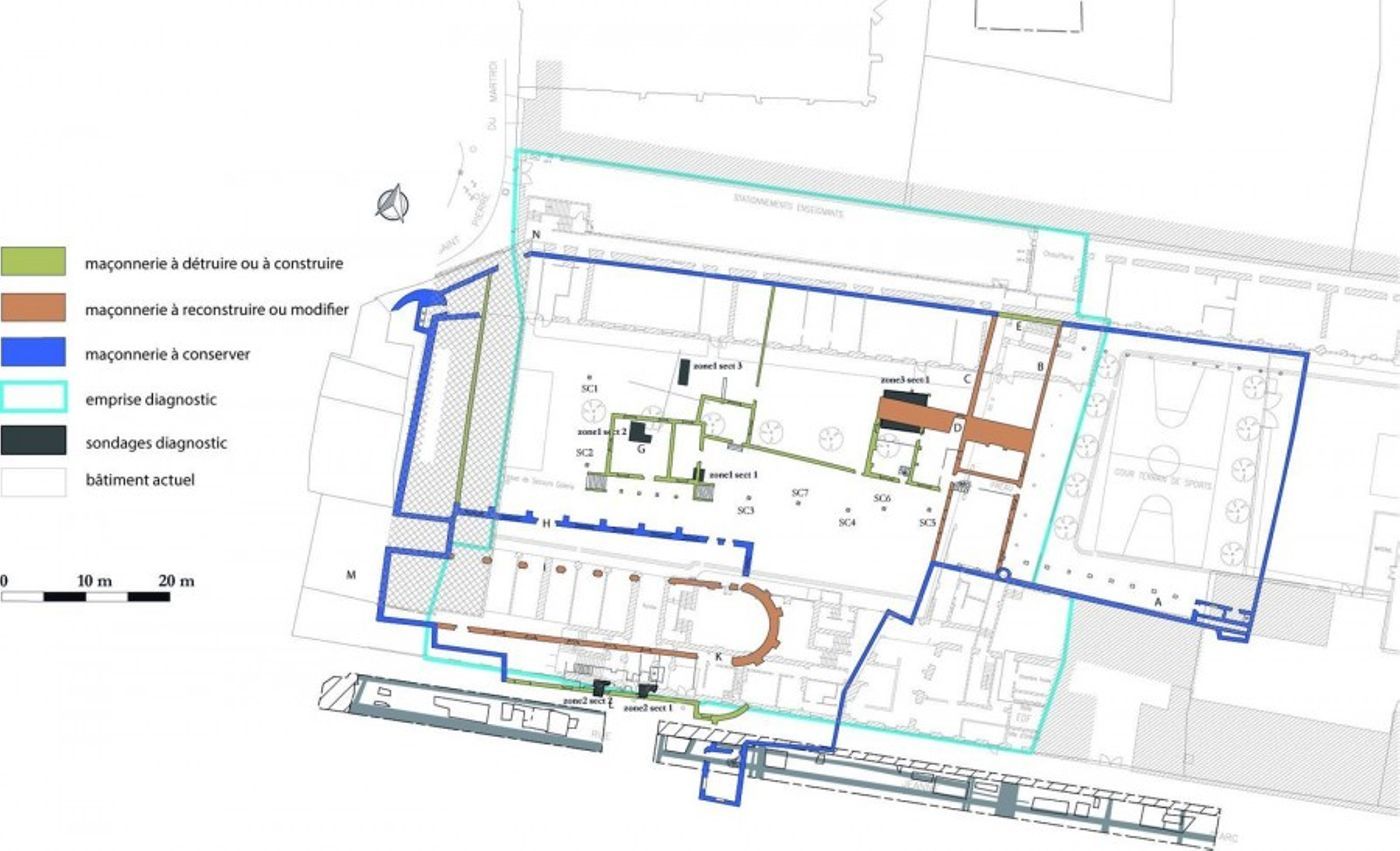
Plan des sondages archéologiques du diagnostic du Collège Anatole Bailly, avec la localisation des caves (crédits : Pôle d'archéologie, 2015).
Plan des sondages archéologiques du diagnostic du Collège Anatole Bailly, avec la localisation des caves (crédits : Pôle d'archéologie, 2015).
Plan de localisation d'une anomalie topographique interprétée comme le fossé du rempart gaulois (crédits : Pôle d'archéologie, 2015).
Plan de localisation d'une anomalie topographique interprétée comme le fossé du rempart gaulois (crédits : Pôle d'archéologie, 2015).
Réalisation des sondages géotechniques lors du diagnostic archéologique du Collège Anatole Bailly. (crédits : Pôle d'archéologie, 2015)
Réalisation des sondages géotechniques lors du diagnostic archéologique du Collège Anatole Bailly. (crédits : Pôle d'archéologie, 2015)
Coupes de l'anomalie topographique interprétée comme le fossé du rempart gaulois, à partir des sondages géotechniques réalisés lors des travaux du tramway et lors du diagnostic archéologique du Collège Anatole Bailly (crédits : Pôle d'archéologie, 2015).
Coupes de l'anomalie topographique interprétée comme le fossé du rempart gaulois, à partir des sondages géotechniques réalisés lors des travaux du tramway et lors du diagnostic archéologique du Collège Anatole Bailly (crédits : Pôle d'archéologie, 2015).

Le fossé du rempart gaulois de la ville (Ier s. av. J.-C.)

La moitié orientale du site est impactée par une vaste anomalie topographique à profil en "V" de 40 m de large à l’ouverture. Elle a été perçue au travers des sondages géotechniques conduits dans la cour, mais également lors des sondages manuels menés dans la cave située sous la cour. Ces derniers ont permis la mise en évidence d’une probable limite occidentale à ce vaste creusement. Le fond a été atteint à 14 mètres de profondeur sous le niveau du sol actuel. Cette anomalie est brutalement condamnée vers la fin du Ier av. J.-C.-début du Ier ap. J.-C., avec un premier apport massif de remblais de calcaire remanié, puis des rejets de différentes natures dont des déchets domestiques riches en mobilier.

Des vestiges connus depuis le XIXe siècle

D’après les informations recueillies depuis le XIXe siècle, il existait un faisceau d’indices, convergeant vers l’existence d’une grande dépression de 30 à 40 m de large, situé entre le Collège Bailly et les Halles Châtelet. Il était interprété par certains auteurs comme la marque du passage du fossé de la fortification gauloise suggérée dans la Guerre des Gaules par César.

"Il (César) campe devant la ville (Cénabum), et, l’heure avancée lui interdisant de commencer l’attaque, il la remet au lendemain ; il ordonne à ses troupes de faire les préparatifs ordinaires en pareil cas, et, comme il y avait sous les murs de la place un pont qui franchissait la Loire, craignant que les habitants ne prissent la fuite à la faveur de la nuit, il fait veiller deux légions sous les armes. Les gens de Cénabum, peu avant minuit, sortirent en silence de la ville et commencèrent de passer le fleuve. César, averti par ses éclaireurs, introduit, après avoir fait incendier les portes, les deux légions qu’il tenait prêtes, et se rend maître de la place : il s’en fallut d’un bien petit nombre que tous les ennemis fussent faits prisonniers, car l’étroitesse du pont et des chemins qui y conduisaient avait bloqué cette multitude en fuite. César pille et brûle la ville, fait don du butin aux soldats, passe la Loire et arrive dans le pays des Bituriges."

(Jules César, La Guerre des Gaules, VIII, 38)

Les nouveaux éléments du diagnostic

Aujourd’hui, les observations faites dans la cour du Collège donnent corps à l’existence de ce vaste fossé comblé durant la période augustéenne. La largeur importante de l’ouvrage plaiderait en faveur d’un rempart à talus massif, également désigné sous l’appellation rempart de "type Fécamp" et dont les spécialistes s’accordent à reconnaître le rôle hautement défensif. Ce type de rempart apparaît dans le second quart du Ier s. av. J.-C. et serait utilisé tout au long de ce siècle. Ces aménagements se rencontrent pour des sites de tailles très variables allant de quelques hectares à plusieurs dizaines d’hectares, sans répartition géographique apparente, les découvertes se faisant sur presque toute la Gaule.

La forme exacte et le tracé global de cette fortification reste encore à déterminer. Toutefois, un deuxième tronçon de ce fossé semble avoir été détecté plus à l’est, entre les rues Saint-Flou et de l’Université. Ainsi, nous disposons de deux tronçons parallèles, distants de 400 mètres l’un de l’autre.

Actuellement, les observations géotechniques des alentours du Collège orientent la restitution d’une fermeture du fossé au nord, inscrite entre la rue Jeanne d’Arc au sud et la rue d’Escures au nord. On obtiendrait ainsi une forme grossièrement quadrangulaire de ce rempart, protégeant une surface de l’ordre de 10 hectares.

L'enceinte urbaine de la ville au IVe siècle

Si les premières traces d’habitats gallo-romains révélées sur l’emprise du diagnostic sont attribuées au Bas-Empire (IIIe siècle), on ne peut exclure l’implantation d’habitations dès le Haut-Empire (Ier-IIe siècle), à l’emplacement du rempart gaulois totalement détruit.

Il faut attendre la deuxième moitié du IVe siècle (si on s’en tient à la datation généralement admise) et la construction de l’enceinte, pour retrouver la marque d’un aménagement important sur le site. Ainsi, le mur de courtine, observé sur 5 mètres de haut en différents points, se révèle très comparable dans sa forme aux autres sections étudiées et relevées. Il présente une fondation de 3,20 mètres de large constituée de gros blocs noyés dans un mortier de tuileau et présentant une alternance de trois rangs de briques et trois rangs de moellons calcaires.

D’après les trois tours connues sur le tronçon nord-est de l’enceinte, la mise au jour d’une tour était attendue dans la cour. Elle devait se trouver à 60 mètres à l’est de la tour Saint Samson encore visible dans la cave d’une maison de la rue Sainte Catherine. L’ouverture d’un sondage dans la cour à l’emplacement supposé a permis de constater l’absence de toute maçonnerie. Il faut par conséquent s’orienter vers l’existence de quatre tours et donc d’une équidistance entre les tours plus réduite, de l’ordre de 48 mètres entre elle.

Vestiges de la courtine de l'enceinte du Bas-Empire, mise au jour lors du diagnostic archéologique du Collège Anatole Bailly. On voit de parement du mur vers l'extérieur de la ville avec les alternances de briques et de pierres (crédits : Pôle d'archéolog
Vestiges de la courtine de l'enceinte du Bas-Empire, mise au jour lors du diagnostic archéologique du Collège Anatole Bailly. On voit de parement du mur vers l'extérieur de la ville avec les alternances de briques et de pierres (crédits : Pôle d'archéolog
Plan de localisation de l'enceinte du Bas-Empire, mise au jour lors du diagnostic archéologique du Collège Anatole Bailly (crédits : Pôle d'archéologie, 2015).
Plan de localisation de l'enceinte du Bas-Empire, mise au jour lors du diagnostic archéologique du Collège Anatole Bailly (crédits : Pôle d'archéologie, 2015).
Chapelle basse de l'église Saint-Samson, datée du Xe-XIe siècle et mise au jour lors du diagnostic archéologique du Collège Anatole Bailly. Cette chapelle n'apparaît pas sur les plans anciens du prieuré Saint-Samson (crédits : Jean Puyo, 2015).
Chapelle basse de l'église Saint-Samson, datée du Xe-XIe siècle et mise au jour lors du diagnostic archéologique du Collège Anatole Bailly. Cette chapelle n'apparaît pas sur les plans anciens du prieuré Saint-Samson (crédits : Jean Puyo, 2015).

Le prieuré Saint-Samson à partir du Xe siècle

La période du haut Moyen Âge (Ve-Xe siècles) est très mal documentée sur le site. Pourtant, les sources historiques semblent placer la construction de l’église Saint-Symphorien au VIe siècle et l’arrivée dans ce prieuré de moines bretons, avec les reliques de Saint-Samson vers 919 ou 920.

Parmi les découvertes majeures faites sur le site, il faut mentionner la mise en évidence d’une chapelle basse préservée dans le bâti actuel. Elle est située au long de la rue Jeanne d’Arc et sa découverte  a permis de reconnaître le plan d’origine de l’église Saint-Samson, détruite au XIXe siècle. Outre les arguments de la chronologie relative, deux datations au radiocarbone sur les enduits et le mortier des maçonneries permettent de placer cette construction au Xe-XIe siècle.

La construction est enterrée d’environ 1,60 mètres par rapport au niveau du sol extérieur. Elle a été partiellement fouillée et assimilée à une crypte de l’église Saint-Samson. Ceci permet d’en savoir un peu plus sur cette église du Moyen Âge. La construction identifiée correspond à une absidiole orientée. Elle se trouvait à l’origine sous le collatéral sud de l’église médiévale connue par les plans du XVIIe siècle. Elle était éclairée par une baie axiale attestant de sa position à l’extrémité orientale d’un édifice correspondant à un état antérieur, plus court que celui attesté au XVIIe siècle. L’ensemble est encore voûté et bien construit, recouvert de son enduit d’origine portant des traces de badigeon et peut-être de pigment rouge. Les quelques restes de pots à encens découverts sur le sol de la chapelle laissent envisager un lieu dévolu en partie aux cérémonies funéraires, mais dans lequel il ne semble pas y avoir eu d’inhumation. Il ne s’agirait donc pas d’une chapelle funéraire au sens strict. Cette absidiole devait faire partie d’une crypte plus vaste, qui se développait probablement également au nord sous l’emprise du chœur et de l’abside de l’église haute.


Plan du prieuré Saint-Samson exécuté en 1620 par E. Martellange, pour l'état des lieux avant modification par les Jésuites (crédits : Archives Nationales, HD-4-7).
Plan du prieuré Saint-Samson exécuté en 1620 par E. Martellange, pour l'état des lieux avant modification par les Jésuites (crédits : Archives Nationales, HD-4-7).
Plan interprété du prieuré Saint-Samson, d'après celui exécuté en 1620 par E. Martellange, et disposé sur le plan cadastral actuel (crédits : Pôle d'archéologie, 2015).
Plan interprété du prieuré Saint-Samson, d'après celui exécuté en 1620 par E. Martellange, et disposé sur le plan cadastral actuel (crédits : Pôle d'archéologie, 2015).

La transformation du prieuré Saint-Samson

Au XVIe siècle une importante phase de construction semble impacter la cour avec le creusement d’un vaste réseau de caves nord-sud éradiquant 6 m de stratigraphie antique et médiévale sur son emprise. Ce développement est associé à l’extension de la propriété du prieuré vers le nord, avec l’insertion en 1504 de l’emprise du mur d’enceinte et de celle du fossé situé au-devant. Bien que passé sous silence par les sources, cette période doit également connaître un agrandissement vers l’est de l’église Saint-Samson pour prendre les dimensions qu’elle aura sur le plan d’état de lieux de 1620. Malheureusement les observations conduites n’ont pas permis de préciser la date exacte de cette extension.

Du Collège Jésuite au Lycée

De la période d’occupation par les Jésuites, on retiendra globalement la volonté d’adapter un site à sa nouvelle fonction de Collège, par un ordonnancement simplifié et clair prenant malgré tout appui sur l’existant. La permanence des cours en partie centrale est un exemple particulièrement éclairant de ces travaux.

Après le départ des Jésuites en 1762, malgré les travaux importants du XIXe siècle générés par la restructuration profonde de ce site vétuste, nous n’enregistrons aucun travaux impactant profondément le sous-sol sur cette partie du Collège, l’essentiel consistant en démolitions, réhaussement, construction légère ou construction prenant appuis sur des fondations plus anciennes, à l’exemple du bâtiment sur la rue Jeanne d’Arc fondé sur l’ancienne église Saint-Samson.

Plans de l'évolution du Collège Jésuite, puis Royal, puis Lycée entre 1620 et 1957 (crédits : Pôle d'archéologie, 2015)
Plans de l'évolution du Collège Jésuite, puis Royal, puis Lycée entre 1620 et 1957 (crédits : Pôle d'archéologie, 2015)
Vue de l'église Saint-Samson depuis la nouvelle rue Jeanne d'Arc en 1847, avant sa démolition (d'après une aquarelle de Beaujoint, reproduite dans l'ouvrage de L.-H. Tranchau en 1893).
Vue de l'église Saint-Samson depuis la nouvelle rue Jeanne d'Arc en 1847, avant sa démolition (d'après une aquarelle de Beaujoint, reproduite dans l'ouvrage de L.-H. Tranchau en 1893).
Plans de l'évolution du prieuré Saint-Samson entre le XIIIe siècle et le XVIe siècle (crédits : Pôle d'archéologie, 2015)
Plans de l'évolution du prieuré Saint-Samson entre le XIIIe siècle et le XVIe siècle (crédits : Pôle d'archéologie, 2015)
Partager la page